携手同行,共创辉煌!
论文交流
当前位置:首页 > 业务交流 > 论文交流

唐山市某污水处理厂水质高标准提标改造设计案例

导读

目前,我国大部分城镇污水处理厂执行GB 189182002标准中的一级A排放标准。为进一步改善水环境质量,满足污水资源化利用的发展需求,近年来北京、天津、安徽、江苏等地陆续出台了较《城镇污水处理厂污染物排放标准》(GB 189182002)更加严格的流域或区域排放标准。

2021111日,国家发展改革委等10部门联合发布了《关于推进污水资源化利用的指导意见》(以下简称《意见》),明确发展目标:到2025年,全国污水收集效能显著提升,水环境敏感地区污水处理基本实现提标升级;全国地级及以上缺水城市再生水利用率达到25%以上,京津冀地区达到35%以上。20211024日,《中共中央国务院关于完整准确全面贯彻新发展理念做好碳达峰碳中和工作的意见》发布,26日国务院发布《2030年前碳达峰行动方案》。

在节能减排、绿色发展的政策背景下,污水厂提标改造面临新的发展要求。

唐山市属于严重缺水城市,201811月,唐山市人民政府办公厅发布《唐山市2019年全城治水清水润城工程工作方案》,提出通过实施河道综合治理、河湖水系连通、污水处理厂改造提升、水源涵养及供水、水库除险加固、沿河村庄环境综合治理等6大类工程措施,实现全城水质达标,要求唐山市现状的污水处理厂均需完成类IV类水提标改造。本次提标改造中对多段AO生反池进行MBBR改造和精确曝气改造,深度处理采用臭氧催化氧化工艺,除臭采用全过程除臭,新建尾水排放管并安装水力发电装置。

1项目概况

本污水处理厂位于唐山市区以北,始建于1990年,经过一期新建、二期扩建、三期提标改造和中水回用工程建设,总处理规模达到12m3/d,出水达到一级A标准。根据唐山市实施“全域治水,清水润城”战略的需要,本污水处理厂的改造目标为将出水标准由一级A提高到北京市地方标准《城镇污水处理厂水污染物排放标准》(DB 11/8902012)中的B标准(京B标准),同时解决臭气达标排放问题。本工程进出水水质如表1所示。从一级A提升到京B标准,除了总氮不变,CODBOD5SS,氨氮和总磷的出水浓度都要求降低。现状出水SS和总磷已经能达到京B标准,主要是通过优化现状高效沉淀池的药剂投加量和运行参数实现。因此,本次提标改造的主要目标是强化CODBOD5和氨氮的去除。

污水处理厂设计进出水水质

注:1括号外数值为水温>12摄氏度时的控制指标;括号内数值为水温≤12摄氏度时的控制指标

2提标改造重点

我国城市污水处理厂的升级改造则多以主体工艺改造为主,主要思路包括对原工艺进行改造,即强化生物处理,和增加深度处理两个方面。根据进水水质、新的出水水质要求,对现状生物处理池的处理能力进行评估,本次提标改造的重点如下。

1)污水处理厂进厂水污染物的C/N较高,污水的可生化性较好,选择在二级生物处理阶段作为脱氮除磷的主要场所,是经济合理的。现状污水处理厂共5组生反池,总处理规模为12m3/d。根据核算,厌氧段、缺氧段和好氧段停留时间为1.06.6 h9.7 h,总水力停留时间为17.3h。现状厌氧池和缺氧池的停留时间基本满足新标准的设计需求,现状好氧区停留时间不足,不能满足新标准的设计需求。由于本污水处理厂提标改造工程在原用地范围内进行,无新征用地,需要在不增加池容的情况下,增加生反池的污染物去除能力。

2)本提标改造项目对出水CODCrBOD5有较高的要求,要求分别从50 mg/L降到3 0mg/L,从10 mg/L降到6 mg/L。污水处理厂实际进水中混有工业废水,水中含有难降解有机物。前端生化工艺对可生物降解有机污染物的降解比较充分,进一步削减COD需要去除难生物降解有机物。因此,需要增加深度处理进一步去除难降解有机物。高级催化氧化技术是去除难降解有机物的有效方法。高级催化氧化技术中,臭氧氧化应用较为广泛。臭氧具有极强的氧化性,能与许多有机物或官能团发生反应,有效地改善水质。综合考虑,本项目深度处理采用了臭氧催化氧化工艺。

3)现状曝气系统的气量调节通过人工手动调节鼓风机来实现,由于多组生反池之间存在压力不平衡、配水动态变化等问题,手动调节无法准确控制生反池内的溶解氧浓度。现状生反池运行过程中DO2.5~8.5 mg/L大幅波动,离散度达到了3.42,生反池好氧环境处于不稳定的状态。

在这种状态下,不仅硝化菌的活性会受到影响,自身氧化速度加快,而且有机污染物分解过快,从而使微生物缺乏营养,加速污泥老化。同时高DO的污水回流到缺氧池中会破坏反硝化所需的缺氧环境,有机物的过快分解又使反硝化反应缺少碳源,如不及时补充碳源,会影响出水总氮指标。在实际工程中,若进入反硝化段的污水BOD5TN<4 mg/L时,应考虑外加碳源;若BOD5TN4 mg/L,可认为反硝化完全。当碳源不足时,系统需投加的外部碳源量可根据生物法去除总氮所需的BOD5与进水实际BOD5的差值除以外部碳源的BOD5当量得到。本项目改造前进入反硝化段的污水BOD5/TN3.2,所需乙酸钠投加量约为80 mg/L。因此,运行时在第二段AO池的缺氧段进水端投加乙酸钠(含量为58%,以C2H3NaO2计),投加量为15~16 t/d

4)一方面,溶解氧浓度直接影响污水生物处理效果;另一方面,污水处理过程中,二级生物处理能耗最高,占全流程污水处理工艺能耗的50%~70%,而鼓风机的能耗占到二级生物处理过程的60%左右,是生化处理过程的关键能耗设备。因此,需要对曝气过程采用合适的控制系统以精确控制溶解氧浓度,同时降低能耗。

5)现状污水处理厂的污泥浓缩池已设加盖除臭设施,厂界指标基本达到《城镇污水处理厂污染物排放标准》(GB 189182002)厂界二级排放标准。如何更加经济地进行除臭优化设计,使臭气稳定达标也是本项目要解决的问题。

6)本次提标改造无新征用地,所有改造均需在厂区现状场地内进行。新建的臭氧接触池需要先拆除一期废弃的生反池、二沉池和污泥浓缩池后原址新建。根据现状平面布置,现状尾水排放管距离新建深度处理池较远,且厂区围墙内无空间新建工艺管将尾水接入现状尾水排放管,同时,新建深度处理池距离排放水体较近,综合考虑,设计新建一根排放管,就近排入受纳水体。一方面,由于受纳水体上游有水库拦蓄,受纳水体在非汛期主要以本污水处理厂尾水为主,水体常水位常年较低,现有污水处理厂尾水水位与受纳水体有较大的落差,造成水力势能浪费。另一方面,河道断面水质监测结果表明,现状尾水排放口下游断面水质好于上游,即污水处理厂的尾水对受纳水体水质有一定改善作用,本次提标改造工程完成后尾水水质将进一步提高。考虑到本污水处理厂的尾水水质好,水量稳定且基本不受季节影响,是可稳定利用的再生水资源,如何进行尾水资源化利用也是本项目的重点。

综合考虑,本项目主要改造内容为:生反池采用精确曝气和MBBR改造,新增臭氧催化氧化池,除臭采用全过程除臭,新建12m3/d规模尾水管及排放口。提标改造工艺流程如图2所示。

本项目工艺改造流程图

3项目设计亮点

3.1生反池同时进行精确曝气和MBBR改造

生反池需同时进行MBBR改造和精确曝气改造,曝气控制需同时兼顾MBBR填料挂膜和流化要求,好氧池DO浓度稳定在2.0 mg/L以及节能降耗的要求。为了兼顾MBBR和精确曝气的需求,本项目精确曝气对MBBR穿孔曝气采用给定风量控制策略,对好氧区微孔曝气采用溶解氧控制策略,从而有效协调和分配多段AO+MBR工艺的曝气量,实现工艺的稳定运行。

本改造获得的效益包括以下情况。

1)通过精确曝气实现自动控制,减少了操作人员手动调节鼓风机的工作量。

2)实现了DO浓度的精准控制。改造后,生反池DO稳定维持在设定值2.0 mg/L附近,离散度只有0.15,与设定值偏差在±0.3 mg/L以内。在这种稳定的状态下,硝化反应效率较高,同时2.0 mg/LDO的回流也不会对缺氧环境造成影响,反硝化反应得到保障,出水总氮浓度降低且更加稳定。

3)本项目将第二段AO的好氧段进行改造,形成环形通道,同时在出水口安装拦截穿孔罩和穿孔曝气管,成功解决了MBBR改造后普遍存在的填料聚集到生反池出水口,堵塞出水口造成生反池水位升高、污水从生反池上部溢出的问题。

4)显著节约运行成本。改造后,曝气系统的电耗由0.2 kW·h/m3降至0.1 kW·h/m3,降幅达到49.8%,每年节约电费约为120万元。适度的溶解氧也不会造成碳源的过度消耗,进水正常情况下,本项目改造后进入反硝化段的污水BOD5/TN4.0,系统无需外加碳源,则可节约外加碳源15~16 t/d,按外加碳源单价约1 500~1 800/t,则节省碳源投加成本约1100万元/a

3.2同步采用溶气式与填料式尾水臭氧催化氧化工艺

根据招标文件要求,本项目臭氧催化氧化接触池分为两组,每组为6m3/d,分别采用溶气式和填料式臭氧催化氧化工艺,臭氧投加量为12 mg/L。臭氧接触池设计停留时间为45 min,池体尺寸为51.2 m×15.7 m×8.3 m,同时兼顾两种工艺。溶气式臭氧催化氧化是通过均相催化反应器向水中投加具有催化作用的离子,利用电磁的作用改变污水分子的微观物质形态,通过高效臭氧溶气装置投加臭氧,提高臭氧气体的溶解效率,并有效减少臭氧投加量。填料式臭氧催化氧化是以高效催化剂作为滤料,催化剂投加量为416 m3,利用催化剂较大的比表面积和孔隙率,提供活性吸附位,生成高活性、低活化能的中间络合物,然后产生氧化能力极强的∙OH,提高臭氧氧化效能。两种催化氧化工艺对池型要求不同,且填料式臭氧催化氧化工艺的水头损失比溶气式臭氧催化氧化高1.0 m,一座池子采用两种处理工艺,设计难度极大。

为解决上述难题,本项目进行了工艺和结构优化设计,包括均匀配水,两组接触池设置不同堰高、液位高和超高,调整设备安装位置,保证两组工艺运行效果。

(一)溶气式臭氧催化氧化池

(二)填料式臭氧催化氧化池

两组臭氧接触池剖面图

3.3全过程除臭

本项目除臭采用全过程除臭工艺,包括微生物培养系统和除臭污泥投加系统。本除臭工艺需要在污水处理厂生反池内安装一定数量的除臭微生物培养箱,在污泥回流泵房安装污泥泵,按2%~6%的回流比将污泥回流至污水处理厂进水端,除臭微生物可以贯穿整个处理工艺,分解水中产生臭气的污染物,达到全过程除臭的目的。该方法无需加盖,无需臭气收集和输送系统,无需新建除臭设施,系统精简、占地小、投资运行成本大幅降低,运行稳定、维护简便,尤其对于老厂改造,无需停产。

全过程除臭工艺流程

3.4尾水排放耦合势能发电

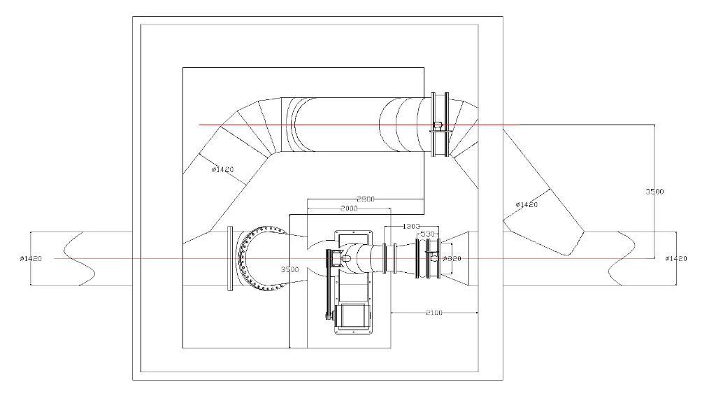
本项目新建一根DN1400的尾水排放管,尾水排放水位与河道常水位存在约4.0 m高差,设跌水井一座。污水处理厂的尾水水质、水量稳定,且基本不受季节影响,是可稳定利用的再生水资源,因此,本项目后续考虑将对跌水井进行水力发电改造,利用尾水水力势能发电。水力发电装置安装在排放管上,同时设旁通管一根,当排放管因发电设备故障需停水,或遇河道洪水位排水不畅时,尾水可从旁通管排出。经过计算,该发电设备为水轮机,功率为60 kW,可实现水力发电1 200 kWh,可用于厂区内照明等用电设备供电,电费按0.68/kWh)计,则每年节约电费约30万元。利用污水处理厂尾水发电是对我国碳达峰碳中和政策的积极响应,可以有效减少污水处理厂的碳排放。

尾水管发电装置

3.5污水处理厂尾水资源化利用

唐山属于缺水型地区,为响应国家污水资源化利用的号召,本项目推广实施了尾水资源化利用。一路尾水通过再生水泵输送到再生水清水池,供给周边工业企业,规模为3m3/d,再生水回用在节约工业企业自来水用量和成本的同时,为污水处理厂带来的收益为400万元/年。同时,在臭氧接触池出水渠安装潜水泵,设计了三条资源化利用路线,一路用作臭氧发生器的冷却循环水;一路供给厂内水源热泵;一路供给厂内景观绿化用水。污水处理厂内再生水回用规模为0.5m3/d,节约自来水费约1000万元/年。

本污水处理厂改造完成通水后出水水质月均值如图10所示,各项指标均能稳定达到京B标准。

6 20211~8月污水处理厂出水水质月均值

4结论与建议

1)本污水处理厂设计规模为12×104 m3/d,在不新增用地的情况下,出水标准由原国标一级A标准提升到北京市地标《城镇污水处理厂水污染物排放标准》(DB 11/8902012)B标准。

2)本工程对多段AO生反池进行MBBR改造和精确曝气改造,深度处理采用臭氧催化氧化工艺,除臭采用全过程除臭,新建尾水排放管并安装水力发电装置。

3)实际运行表明,本工程出水CODCr低于30 mg/L,氨氮低于1.0 mg/L,总磷低于0.2 mg/L,总氮低于12 mg/L,出水水质完全满足京B标准要求,运行良好。


Baidu
map