1项目背景
水环境质量已经成为城市发展和生活环境改善的重要条件,合肥市斑鸠堰河综合治理工程已展开多年,虽然水质略有改善,但斑鸠堰河小流域污染仍较严重,上游水环境污染问题日益突出,水质总体处于劣Ⅴ-Ⅴ类。
2项目概况
斑鸠堰河小流域位于安徽省合肥市西北,派河左岸支流之一,行政区划主要属合肥市高新区,流域总面积28.34km2,河长6.48km,北靠大蜀山,东、西分别于与王建沟小流域、岳小河小流域相接,南入派河。本工程通过实施水环境治理、水生态修复、水资源利用、水安全保障、水管理提升等工程和措施,使水质达标、水生态健康,斑鸠堰河小流域建设成绿色和谐、生态宜居、美丽休闲小流域。
3设计方案
按照“目标引领、问题导向、总量控制、整体研究、系统设计”的总体思路,通过对规划的分析,明确小流域功能定位;依据水功能区划和考核管理要求,合理确定斑鸠堰河水环境综合治理技术方法及组合。
一、水安全保障
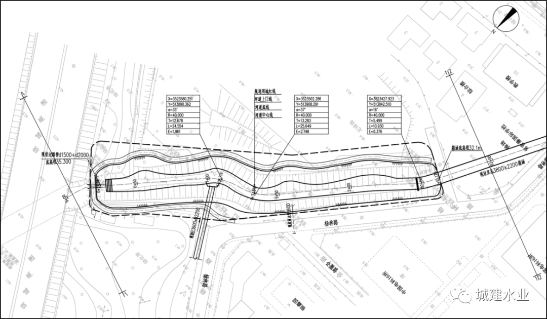
(1)浮山路渠(绕城高速-望江西路)渠道改造
现状河道岸坡裸露土层,右侧岸坡上有堆土,底淤积较为严重,杂草丛生;边坡不稳定,存在安全隐患,两边岸边坡约1:1~1:2左右,现状平均坡降为13‰,洪峰流量为55m³/s,平均流速是4.62m/s。

本次设计综合考虑河道流量变化,以及河道现状及流域范围内用地标高,设计河道纵坡为1‰。根据河道现状情况和“亲自然河道”理念,减少现状河低坡降,减少硬质护砌,保持河道断面宽窄有度,增加跌水曝气。

在河道内合适位置设置清水泵,将河水抽至生物净化渠,河水在生物净化渠净化后,再使河水从高处跌落回河道中,增加河水中的含氧量。

二、水环境治理
(1)完善初期雨水截流工程
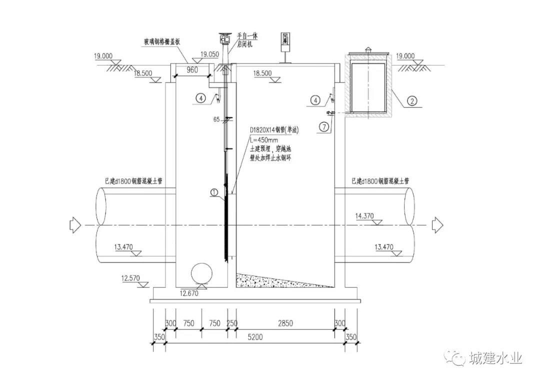
现状仅在浮山路渠(望江西路-习友路)两侧设置初雨截流管,浮山路渠上游排口未截流;截流井采用拍门防倒灌,拍门易闭合不严,发生漏水现象;东支渠仅在箱涵出口末端设置截流,截流效果差。

浮山路渠现状初雨截流管道d1400,坡度2‰,最大流量2.3m³/s,浮山路渠总初雨截流量为4.4m³/s,设计截流主干管管径为d500~d1200mm,设计截流支管管径为d500~d800mm,如图所示:

设计新建2.1m³/s初雨提升泵站,现状初雨提升泵站保留利用。

(2)现状初雨截流井改造
由现状截流井采用拍门形式,经现场检测,淹没式截流拍门基本不能闭合严密,旱季大量污水进入河道。根据检测结果,设计更换14处截流井拍门,设计在截流井内将原浮筒拍门拆除后跟换电动闸门,设置液位仪,根据河道及雨水管道内的雨水液位变化自动启闭闸门,从而实现旱季污水不进入河道,河道内的河水不进入初期雨水截流管道。

三、水生态修复
(1)微孔曝气增氧
微孔曝气增氧系统通过将氧气通过曝气输送管输送至水体内,增加水体溶氧量,充足的溶氧可加速水体底层沉积的污泥、水体动植物残体、散落和剩余编制的饵料以及鱼类排泄物等有机质的分解,转化为微生物,使水体自我净化功能得以恢复,建立起自然水体生态系统,使水活起来。

(2)沉水植物
沉水植物是指植株全部或大部分沉没于水下的植物,是水体生物多样性赖以维持的基础,它的恢复是水生态修复的关键,其所产生的环境效应是生态系统稳定和水环境质量改善的重要依据。选用沉水植物因具有治理效果好和易管养等优点,避免出现水生植物大面积无序繁殖问题,以苦草为主。

四、水资源利用
(1)生态需水量计算:
常用的生态需水量计算方法为Tennant法。

设计考虑选择30%年平均流量作为生态基流需水量,总需水量为4800m³/d,因燕子河路排口就地处理设施可提供500m³/d补水量,故补水量定为4300m³/d。

生态补水工程利用补水泵站从柏堰湖水库分别提水至浮山路渠,补水泵站位于柏堰湖东侧,泵站规模4300m³/d。补水管沿浮山路向北,补水点设置浮山路渠与杨林路交口上游10m,补水管径为DN200,补水管长2.0km。

五、水管理提升
设计建立智慧流域水务平台,并新增6处检查点位,其中河道断面监测点2处、管网监测点4处,除监测功能之外,平台设计标准满足流域智慧管理的需求,同时具备模块扩展和向其他平台对接的条件。

4结语
城市水环境治理及水质保护影响深远、意义重大,但是目前众多水环境项目只重视项目建设,往往忽视了后期运营维护更为重要,建议本工程后期采用设计施工+运营总承包模式(EPCO)模式,后期主要进行智慧水务平台搭建、项目运营管理,用先进的监测平台系统和运营管理对改善水环境进行维持工作。












